
265 780 ₽/м²
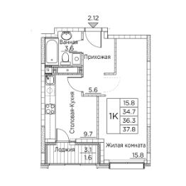
ЖК Гринхилс жилой квартал комфорт-класса в выгодной локации микрорайона Зеленый угол, развивающегося современного жилого кластера во Владивостоке, внутри которого реализуются проекты нового поколения, преобразуя город. Полный набор необходимой инфраструктуры, транспортная доступность, исторические места города в шаговой доступности, а также окружение леса - все это и есть современный Зеленый угол. - 15 минут до центра; - 17 минут до ж/д вокзала; - 10 мин до пляжа Патрокл*; - 30 минут до автовокзала; - 50 минут до аэропорта; - *В конце 2025 года планируется ввод дороги, соединяющей район с объездной Седанка-ДеФриз-Патрокл; Плановый ввод в эксплуатацию: - 1 корпуса - 2 квартал 2026 года; - 2 и 3 корпусов 2 квартал 2027 года; Современные архитектурные и инженерные решения, повышающие качество вашей жизни: - приватный безопасный каскадный двор-парк площадью более 4000м2, спроектирован как отдельный архитектурный объект с зонами, включающими в себя целый комплекс оборудования для детей и взрослых, озеленением и современным освещением, благодаря которому будет приятно гулять и отдыхать во дворе в вечернее и ночное время; - доступ на территорию всего ЖК только для вас и ваших гостей; - видеонаблюдение по периметру всего ЖК; - безбарьерный доступ в дом с обеих сторон; - современная домофония; - дизайнерская отделка мест общего пользования, чтобы было приятно каждый раз, когда приходишь к себе домой; - предусметрено место для консьержа; - туалеты на первых этажах для вашего комфорта; - колясочные; - три современных лифта c прямым доступом к индивидуальным кладовым и паркингу; - трехэтажный приватный паркинг в 3-м корпусе - широкие проезды, индивидуальные машиноместа, безопасное и комфортное хранение вашего автопарка; Множество планировочных решений - студии, 1к, 2к, 3к, 4к и квартиры евро-формата спроектированных по стандарту "Эргом2етрика", учитывающие различные сценарии жизни. Для вашего удобства для каждого варианта планировки вы можете выбрать подходящую готовности квартиры: - без отделки - без отделки с выполненной стяжкой пола - Whitebox - квартира, готовая к декорированию - стены подготовлены дя отделки, проведена электрика с учетом рекомендаций по расстановке мебели и бытовой техники, выровнен пол, в каждой квартире установлена взломостойкая входная дверь; - Whitebox plus - квартира, готовая к декорированию, в которой выполнена полностью отделка санузла; - Квартира с полностью готовой современной отделкой в светлых тонах. Во всех квартирах лоджии имеют панорамное остекление. Для вашего удобства в 1м корпусе открыт демонстрационный этаж, где вы сможете вживую увидеть все варианты отделок квартир - записывайтесь на показ по контактам в этом объявлении.















































































