Только на Циан
10 311 240 ₽
174 000 ₽/м²
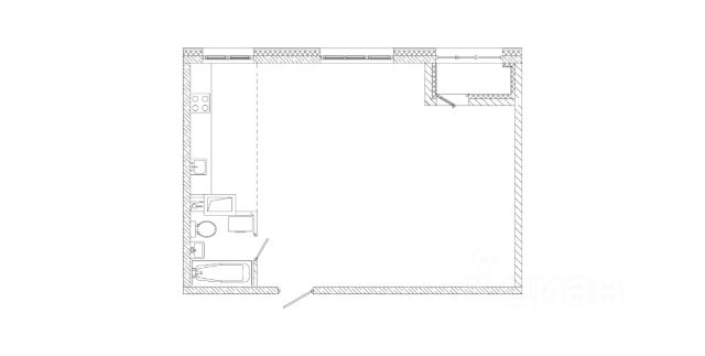
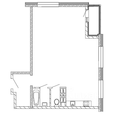
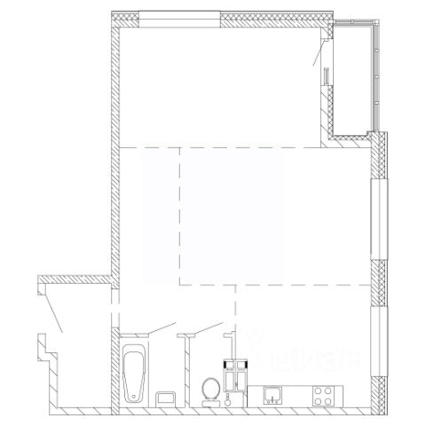
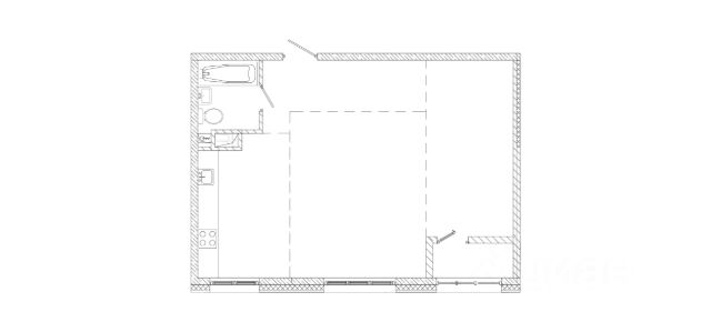
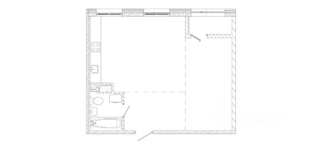
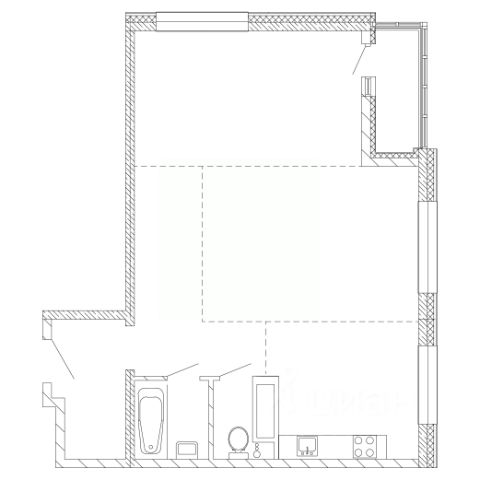
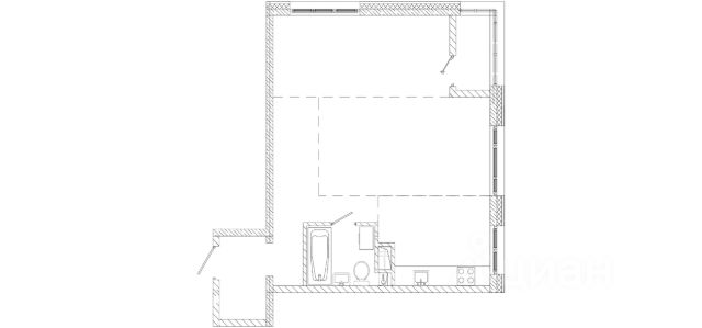
Продаётся 2-комнатная квартира в сданном доме (Пржевальского, 5к4 (Дом 1, корпус 8,9)), срок сдачи: II-кв. 2025, общей площадью 59.26 кв.м., на 6 этаже. Новый жилой комплекс "Наследие" от застройщика "Строй Проект" расположен по адресу город Владивосток, Снеговая улица.




























