

245 081 ₽/м²
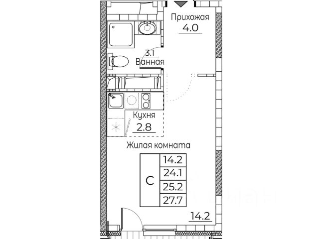
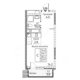
Продается студия с отделкой под ключ в ЖК "Гринхилс". Общая площадь квартиры — 27.3 кв. м, этаж 12 из 20. Тип дома — монолитный. Цена указана при 100% оплате. ЖК "Гринхилс" — жилой квартал комфорт-класса в выгодной локации микрорайона Зеленый угол: развивающегося современного жилого кластера во Владивостоке, внутри которого реализуются проекты нового поколения, преобразуя город. Полный набор необходимой инфраструктуры, транспортная доступность, исторические места города в шаговой доступности, а также окружение леса — все это и есть современный Зеленый угол. ТРАНСПОРНАЯ ДОСТУПНОСТЬ - 15 минут до центра; - 17 минут до ж/д вокзала; - 10 мин до пляжа Патрокл*; - 30 минут до автовокзала; - 50 минут до аэропорта. *В конце 2025 года планируется ввод дороги, соединяющей район с объездной Седанка-ДеФриз-Патрокл. ПЛАНОВЫЙ ВВОД В ЭКСПЛУАТАЦИЮ - 1 корпуса — 2 квартал 2026 года; - 2 и 3 корпусов — 2 квартал 2027 года. АРХИТЕКРУРНЫЕ И ИНЖЕНЕРНЫЕ РЕШЕНИЯ, ПОВЫШАЮЩИЕ КАЧЕСТВО ЖИЗНИ - Приватный безопасный каскадный двор-парк площадью более 4000м2, спроектирован как отдельный архитектурный объект с зонами, включающими в себя целый комплекс оборудования для детей и взрослых, озеленением и современным освещением, благодаря которому будет приятно гулять и отдыхать во дворе в вечернее и ночное время; - Доступ на территорию всего ЖК только для вас и ваших гостей; - Видеонаблюдение по периметру всего ЖК, безбарьерный доступ в дом с обеих сторон и современная домофония; - Дизайнерская отделка мест общего пользования, чтобы было приятно каждый раз, когда приходишь к себе домой; - Предусмотрено место для консьержа, а также туалеты на первых этажах для вашего комфорта; - Колясочные и три современных лифта c прямым доступом к индивидуальным кладовым и паркингу; - Трехэтажный приватный паркинг в 3-м корпусе: широкие проезды, индивидуальные машиноместа, безопасное и комфортное хранение вашего автопарка. МНОЖЕСТВО ПЛАНИРОВОЧНЫХ РЕШЕНИЙ И ВАРИАНТОВ ОТДЕЛКИ - Студии, 1к, 2к, 3к, 4к и квартиры евро-формата спроектированных по стандарту "Эргом2етрика", учитывающие различные сценарии жизни. Для вашего удобства для каждого варианта планировки вы можете выбрать подходящую готовности квартиры: - Без отделки; - Без отделки с выполненной стяжкой пола; - Whitebox — квартира, готовая к декорированию: стены подготовлены дя отделки, проведена электрика с учетом рекомендаций по расстановке мебели и бытовой техники, выровнен пол, в каждой квартире установлена взломостойкая входная дверь; - Whitebox plus — квартира, готовая к декорированию, в которой выполнена полностью отделка санузла; - Квартира с полностью готовой современной отделкой в светлых тонах. Во всех квартирах лоджии имеют панорамное остекление. Для вашего удобства в 1м корпусе открыт демонстрационный этаж, где вы сможете вживую увидеть все варианты отделок квартир. Записывайтесь на показ по контактам в этом объявлении.








































































