Мы используем куки-файлы. Соглашение об использовании
Аукцион
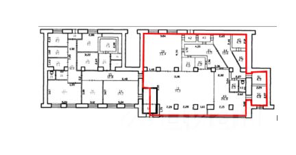
Площадь193,43 м²
Этаж1 из 5
Код лота: РАД-447456. Реализуется на торгах. Аренда нежилых помещений площадью 193, 43 кв. м, входящих в состав нежилых помещений в здании (жилой дом, лит. А), расположенных по адресу: Приморский край, пгт. Славянка, ул. 50 лет Октября, д. 8, площадью 359, 3 кв. м, с кадастровым номером 25:20:000000:3557, этаж: первый https://catalog. lot-online. ru/index. php?dispatch=products. view&product_id=1599482
АукционОбъект реализуется посредством электронных торгов. Конечную информацию об оплате, дополнительных платежах и условия заключения договора смотрите в документах извещения к лоту, на сайте электронной торговой площадки.
lock

Войдите или зарегистрируйтесь
для просмотра информации

Просматривайте условия сделки и всю информацию об объекте
Сохраняйте фильтры в поиске и не вводите заново
Доступ к избранному с любого устройства
Неограниченное добавление в избранное
  • Инфраструктура
  • Похожие рядом
  • Общая площадь193,43 м²
Помощь надёжных риелторов
Риелтор партнёр Циан поможет купить или продать любую недвижимость
Документы проверены
Начальная цена, аукцион
99 899 ₽/мес.
1 323 $/мес.
1 132 /мес.
Цена за метр
6 198 ₽ в год
Налог
НДС включен: 18 014 ₽
Комиссия
нет
Коммунальные платежи
не включены
Эксплуатационные расходы
не включены
Агентство недвижимости
Документы проверены
На Циан
6 лет
Объектов в работе
544