Мы используем куки-файлы. Соглашение об использовании
Помещение свободного назначения, 493 м²

Сдается помещение свободного назначения, 493 м²

Площадь493 м²
Этаж1 из 1
ПомещениеСвободно
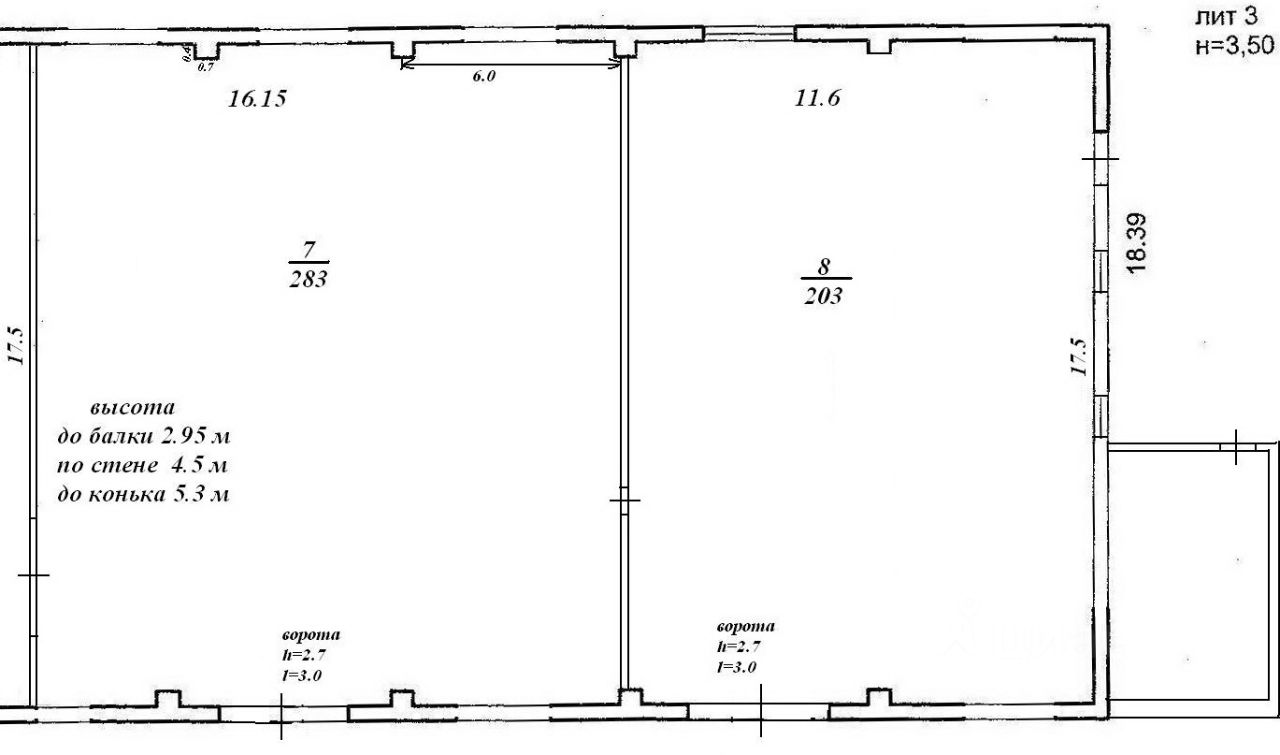
Собственник предлагает к аренде помещение, расположенное на 1 этаже по адресу: ул. Днепровская, д. 25Д. Общая площадь помещений — 493 квадратных метров. Характеристики склада: — Высота 5 м; — Электричество 220/380, большие мощности; — Помещение подойдет под склад или производство; — Вода, туалет в здании; — Ворота: высота 2.7 м, ширина 3 м; — Свободная погрузка товара на грузовики и контейнеровозы любых типов; — Возможность установки городского телефона и выделенной линии интернет. Стоимость аренды помещения — 850 рублей за квадратный метр + коммунальные платежи. БЕЗ КОМИССИИ! Получить консультацию по вопросам аренды помещений можно по телефонам ниже.
lock

Войдите или зарегистрируйтесь
для просмотра информации

Просматривайте условия сделки и всю информацию об объекте
Сохраняйте фильтры в поиске и не вводите заново
Доступ к избранному с любого устройства
Неограниченное добавление в избранное
Позвоните автору
Вам ответят на все вопросы
Остались вопросы по объявлению?
Позвоните владельцу объявления и уточните необходимую информацию.
  • Инфраструктура
  • Похожие рядом
  • Тип зданияПроизводственное здание
  • Площадь участка2 га
  • Общая площадь853 м²
  • Статус участкаВ собственности
Приточная вентиляция
Помощь надёжных риелторов
Риелтор партнёр Циан поможет купить или продать любую недвижимость
Автор объявления
ID 137433219
  • Документы проверены
  • 4 месяца на Циане
  • 419 050 ₽/мес.

    Прямая аренда (от года), минимальный срок аренды 6 месяцев, доступны арендные каникулы, обеспечительный платёж 419050 ₽, предоплата за 1 месяц

    5 570 $/мес.
    4 742 /мес.
    Цена за метр
    10 200 ₽ в год
    Налог
    УСН
    Комиссия
    нет
    Коммунальные платежи
    не включены
    Эксплуатационные расходы
    не включены
    Автор объявления
    ID 137433219
    Документы проверены