Мы используем куки-файлы. Соглашение об использовании
  • ВТБ
    ПСБ
    Совкомбанк
    Альфа-Банк
    Уралсиб
    Банк ДОМ.РФ
    Т-Банк
    МКБ
    Абсолют Банк
    Реальные ипотечные ставки от 9 банков - 5,75% на новостройки, 16,9% на вторичку
    Перейти в сервис
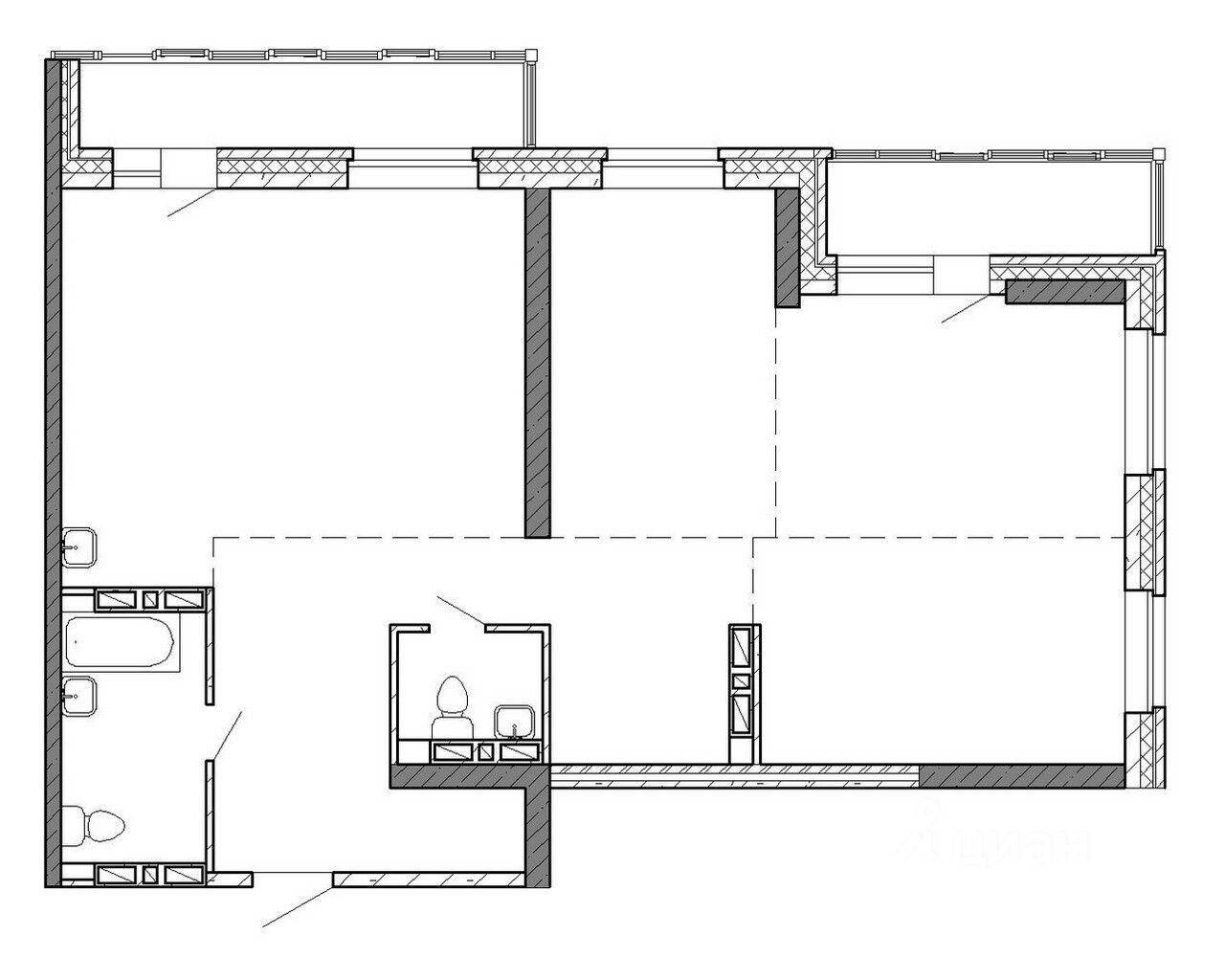
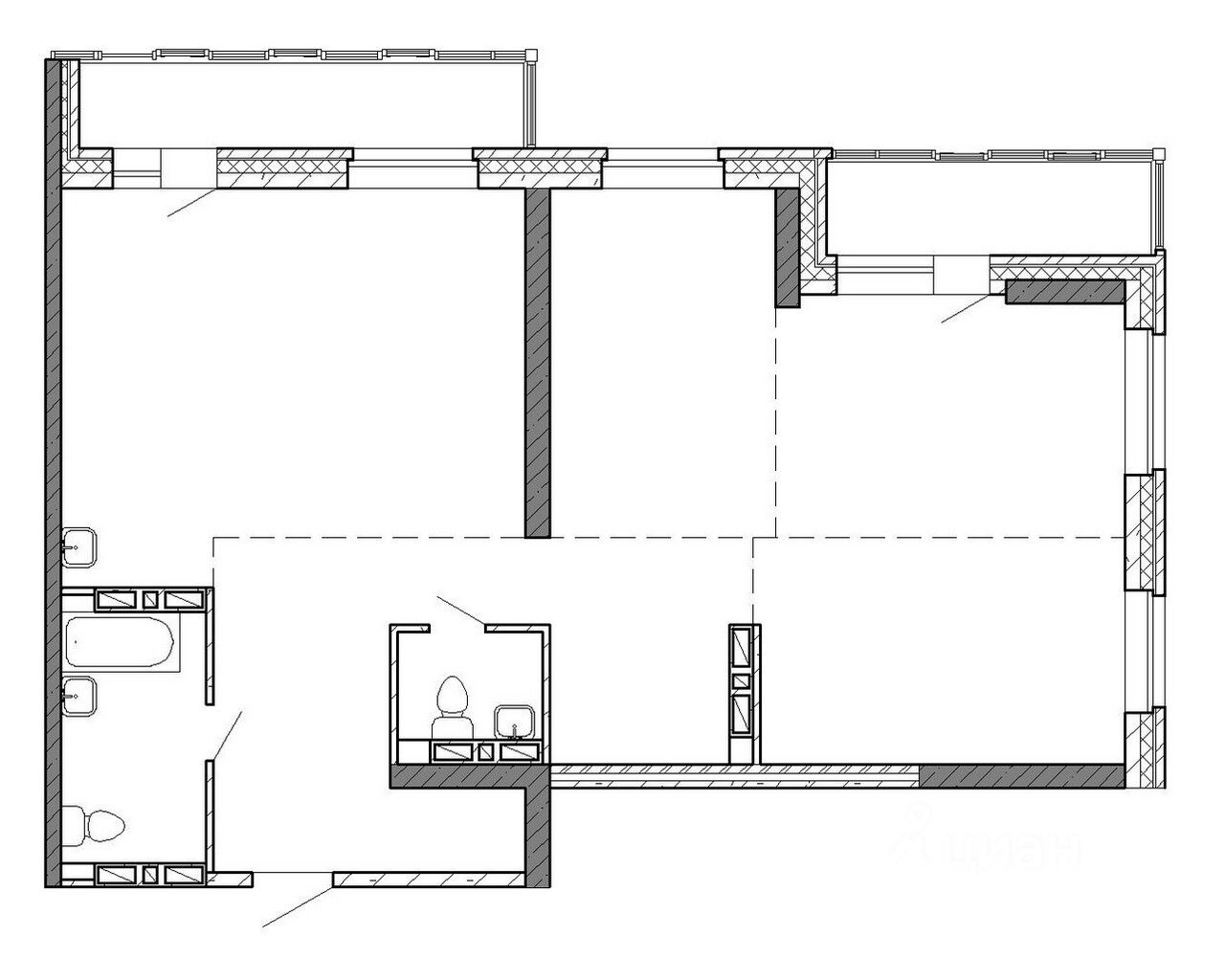
Общая площадь95,1 м²
Этаж24 из 24
Год сдачи2023
ДомСдан
Продаётся 4-комнатная квартира в сданном доме (Дом 4), срок сдачи: IV-кв. 2023, общей площадью 95.1 кв.м., на 24 этаже. Жилой комплекс "Лидер" представляет собой комплексную многоэтажную застройку. Застройщиком спроектированы квартиры с различными планировками: от одно до четырехкомнатных. Благоустройство прилегающей территории включает в себя строительство детской площадки, а также зон отдыха. Предусмотрены открытые гостевые парковки. В шаговой доступности находятся детские сады, школы, медицинские учреждения, аптеки, магазины.

О квартире

Тип жилья

Новостройка

Общая площадь

95,1 м²

Высота потолков

2,7 м

О доме

Количество лифтов

1 пассажирский, 2 грузовых

Тип дома

Монолитно-кирпичный

Пандус

Есть

Похоже на то, что вы ищете?
Ипотечный калькулятор
  • Базовая
  • Семейная
  • ИТ-ипотека
  • 20%
  • 30%
  • 40%
  • 50%
лет
  • 10 лет
  • 20 лет
  • 30 лет
Загружаем предложения от застройщика и банков

Расположение

Корпус проверен наш.дом.рф
Обновлено 23 февраля 2025
  • Нет в реестре проблемных объектов
  • Застройщик не банкрот

Ещё квартиры в жилом комплексе

31 квартира в продаже · Сдан
Консультант
Циан
  • 5 лет 11 месяцев на Циане
  • 28643 объявления
  • 15 691 500 ₽
    Цена за метр
    165 000 ₽/м²
    Условия сделки
    долевое участие (214-ФЗ)
    Консультант
    Циан