Мы используем куки-файлы. Соглашение об использовании
Обновлено: сегодня, 12:05
Объявление снято с публикации
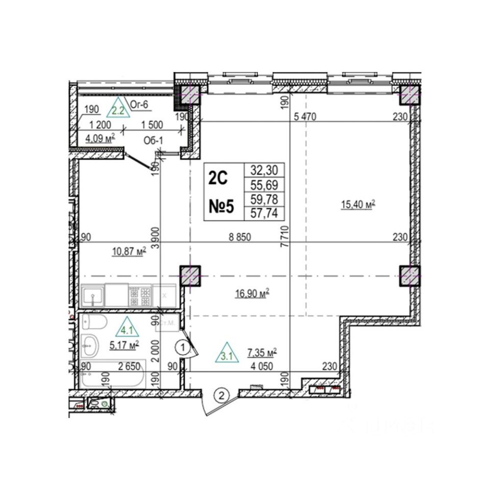
Общая площадь58,02 м²
Этаж2 из 8
Год сдачи2026
ДомНе сдан
Объявление снято с публикации, поищите ещё что-нибудь

О квартире

Тип жилья

Новостройка

Общая площадь

58,02 м²

Высота потолков

2,72 м

О доме

Количество лифтов

1 грузовой

Тип дома

Монолитно-кирпичный

Пандус

Есть

8 412 900 ₽
Цена за метр
145 000 ₽/м²
Условия сделки
долевое участие (214-ФЗ)
Агентство недвижимости
Циан