Мы используем куки-файлы. Соглашение об использовании
Только на Циан
  • ВТБ
    ПСБ
    Совкомбанк
    Альфа-Банк
    Уралсиб
    Банк ДОМ.РФ
    Т-Банк
    МКБ
    Абсолют Банк
    Реальные ипотечные ставки от 9 банков - 5,75% на новостройки, 16,9% на вторичку
    Перейти в сервис
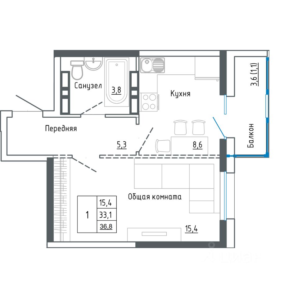
Общая площадь36,8 м²
Этаж25 из 25
Год сдачи2022
ДомСдан
Продаётся 1-комнатная квартира в сданном доме (Дом 44), срок сдачи: IV-кв. 2022, общей площадью 36.8 кв.м., на 25 этаже. Строительная компания "ВЫСОТА" осуществляет строительство первого многоквартирного дома в районе улицы Александра Францева, дом 32 в городе Уссурийск в жилом комплексе "Александровские Высоты". Согласно проекта в 25-и этажном доме, свободной планировки, планируются: 164 - 1-комнатных квартиры, 48 - 2-комнатных квартир, 14 - 3-комнатных квартир. Дом располагается в развивающемся районе. В шаговой доступности детский сад, школа, магазин.

О квартире

Тип жилья

Новостройка

Общая площадь

36,8 м²

Высота потолков

3 м

О доме

Количество лифтов

2 пассажирских, 1 грузовой

Тип дома

Монолитный

Пандус

Есть

Похоже на то, что вы ищете?
Ипотечный калькулятор
  • Базовая
  • Семейная
  • ИТ-ипотека
  • 20%
  • 30%
  • 40%
  • 50%
лет
  • 10 лет
  • 20 лет
  • 30 лет
Загружаем предложения от застройщика и банков

Расположение

Корпус проверен наш.дом.рф
Обновлено 23 февраля 2025
  • Нет в реестре проблемных объектов
  • Застройщик не банкрот

Ещё квартиры в жилом комплексе

65 квартир в продаже · Сдан
Консультант
Циан
  • 5 лет 11 месяцев на Циане
  • 39236 объявлений
  • 6 035 200 ₽
    Цена за метр
    164 000 ₽/м²
    Условия сделки
    долевое участие (214-ФЗ)
    Консультант
    Циан