Мы используем куки-файлы. Соглашение об использовании
Только на Циан

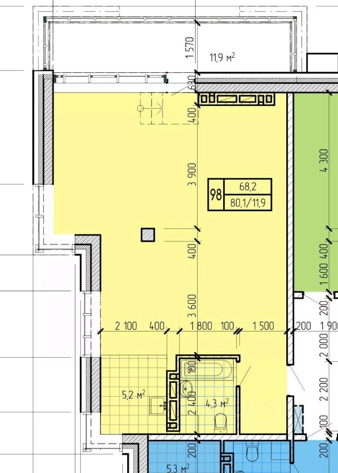
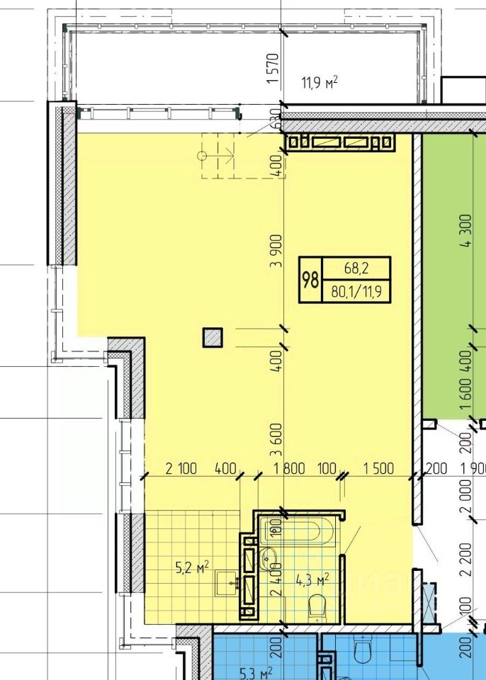
Продается студия, 68,2 м²

Общая площадь68,2 м²
Этаж18 из 19
Год сдачи2027
ДомНе сдан
Продаётся студия в строящемся доме (Дом 1), срок сдачи: II-кв. 2027, общей площадью 68.2 кв.м., на 18 этаже. Новый жилой комплекс от Специализированного застройщика "РИМЭКО" расположен по адресу: г. Находка, по ул. Луначарского.

О квартире

Тип жилья

Новостройка

Общая площадь

68,2 м²

Высота потолков

3 м

О доме

Количество лифтов

1 пассажирский, 1 грузовой

Пандус

Есть

Похоже на то, что вы ищете?
Ипотечный калькулятор
  • Базовая
  • Семейная
  • ИТ-ипотека
  • 20%
  • 30%
  • 40%
  • 50%
лет
  • 10 лет
  • 20 лет
  • 30 лет
Загружаем предложения от застройщика и банков

Расположение

Корпус проверен наш.дом.рф
Обновлено 12 мая 2026
  • Нет в реестре проблемных объектов
  • Застройщик не банкрот
  • Есть эскроу счёт
  • Актуальные фото стройки

Ещё квартиры в жилом комплексе

71 квартира в продаже · Сдача в 2 кв. 2027
Консультант
Циан
  • 5 лет 11 месяцев на Циане
  • 38244 объявления
  • 12 918 600 ₽
    Цена за метр
    189 422 ₽/м²
    Условия сделки
    долевое участие (214-ФЗ)
    Консультант
    Циан