Мы используем куки-файлы. Соглашение об использовании
Только на Циан

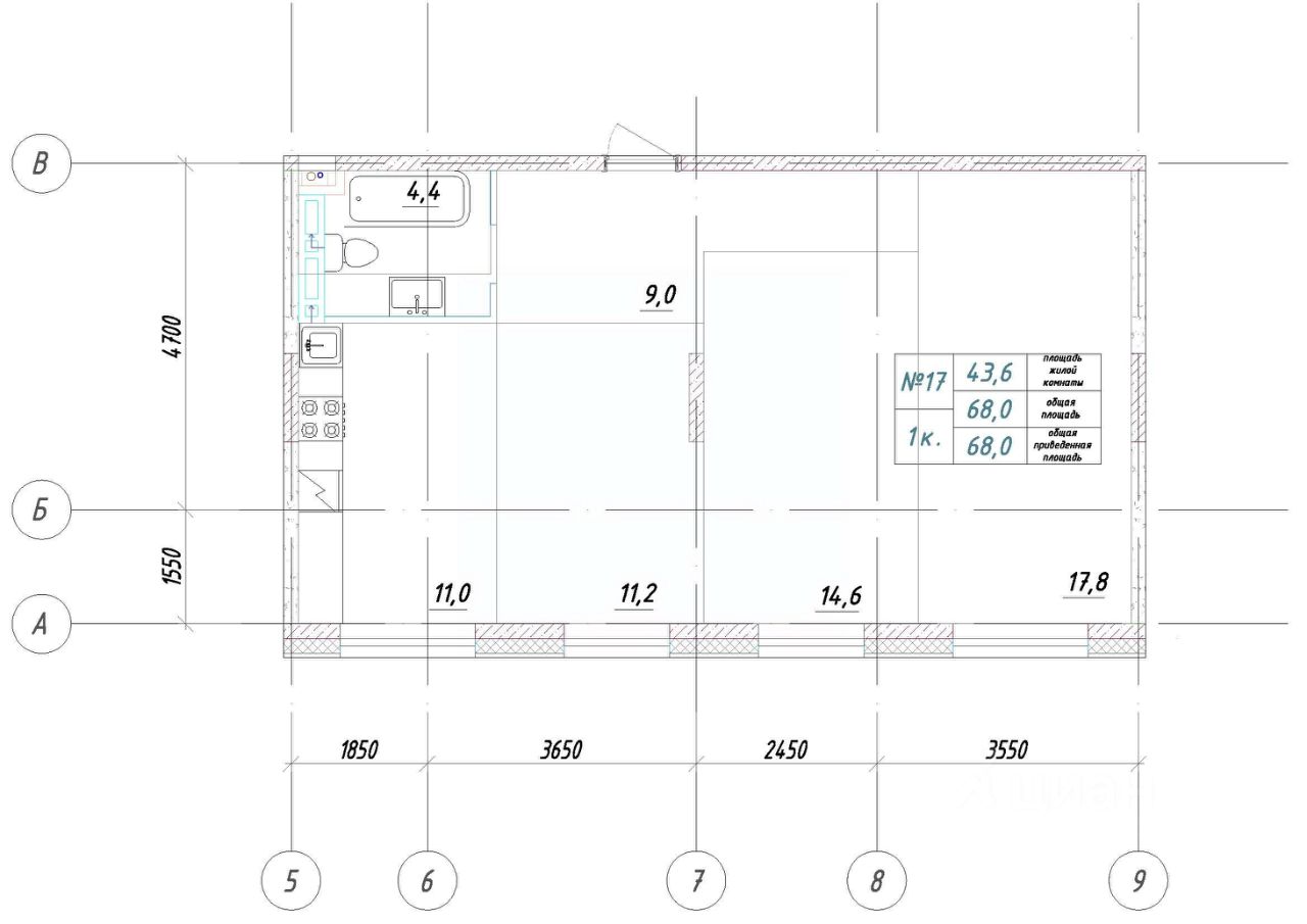
Продается 1-комн. квартира, 68 м²

  • ВТБ
    ПСБ
    Совкомбанк
    Альфа-Банк
    Уралсиб
    Банк ДОМ.РФ
    Т-Банк
    МКБ
    Абсолют Банк
    Реальные ипотечные ставки от 9 банков - 5,75% на новостройки, 16,9% на вторичку
    Перейти в сервис
Общая площадь68 м²
Этаж2 из 16
Год сдачи2028
ДомНе сдан
Продаётся 1-комнатная квартира в строящемся доме (Дом 1), срок сдачи: II-кв. 2028, общей площадью 68 кв.м., на 2 этаже. Новый жилой комплекс от Специализированного застройщика "БЕРЕГОВОЙ" расположен по адресу: г. Большой Камень, по ул. Ленина.

О квартире

Тип жилья

Новостройка

Общая площадь

68 м²

Высота потолков

2,72 м

О доме

Количество лифтов

4 грузовых

Тип дома

Монолитный

Пандус

Есть

Похоже на то, что вы ищете?
Ипотечный калькулятор
  • Базовая
  • Семейная
  • ИТ-ипотека
  • 20%
  • 30%
  • 40%
  • 50%
лет
  • 10 лет
  • 20 лет
  • 30 лет
Загружаем предложения от застройщика и банков

Расположение

Корпус проверен наш.дом.рф
Обновлено 14 мая 2026
  • Нет в реестре проблемных объектов
  • Застройщик не банкрот
  • Есть эскроу счёт
  • Актуальные фото стройки

Ещё квартиры в жилом комплексе

109 квартир в продаже · Сдача в 2 кв. 2028
Консультант
Циан
  • 6 лет на Циане
  • 29579 объявлений
  • 9 180 000 ₽
    Цена за метр
    135 000 ₽/м²
    Условия сделки
    долевое участие (214-ФЗ)
    Консультант
    Циан