Мы используем куки-файлы. Соглашение об использовании
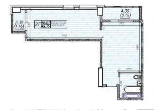
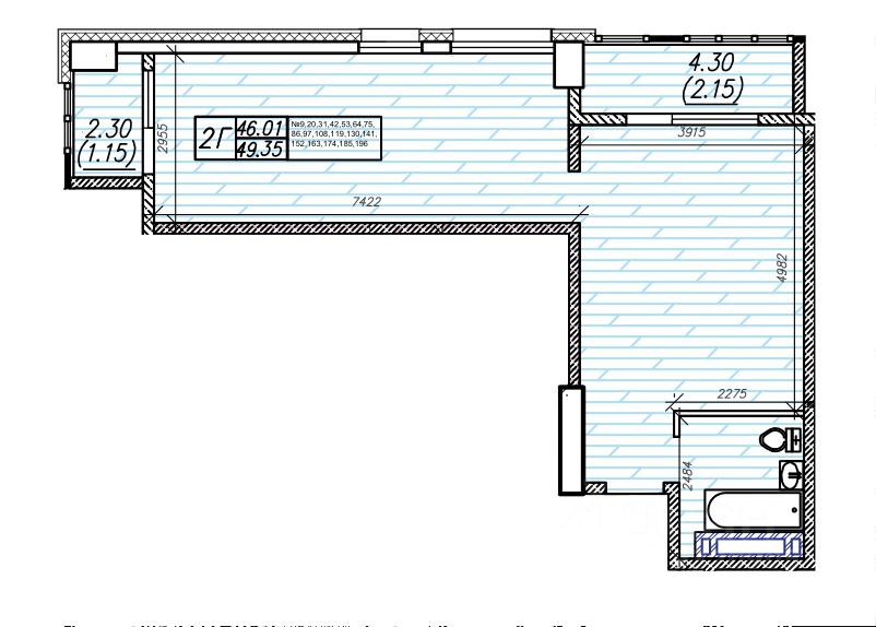
Общая площадь49,35 м²
Жилая площадь44,4 м²
Этаж13 из 16
Год сдачи2026
ДомНе сдан
ОтделкаБез отделки
Современные клубные дома премиального уровня, расположенные в одной из самых живописных локаций города. Панорамные витражи, фасады цвета теплого морского песка, зеленые аллеи и окна с видом на морской пейзаж - синергия солнца и моря для лучшей жизни. Несколько минут и вы на берегу Амурского залива! Море вдохновляет, умиротворяет, успокаивает и очищает разум! Жизнь у моря снижает уровень стресса, заряжает позитивной энергией и повышает уровень творчества. Владивосток город у моря, и конечно же, наиболее высоким спросом здесь пользуются дома в инфраструктурно-развитых районах с шаговой доступности к морю. Именно такой эксклюзивный вариант представляет собой жилой комплекс на Енисейской, рядом с благоустроенной набережной и пляжем "Татарка". Эстетика в каждой детали! ЖК "Суприм" — примечателен своей архитектурой, гармонично вписанной в ритм Владивостока. Жилой комплекс "Суприм" занял первое место и получил золотой диплом на 21 краевом смотре лучших архитектурных произведений "Зодчество Приморья -2023" в номинации: Профессиональный. Архитектура и градостроительство. Подноминация: Жилые здания и комплексы.

О квартире

Тип жилья

Новостройка

Общая площадь

49,35 м²

Жилая площадь

44,4 м²

Высота потолков

2,69 м

Отделка

Без отделки

О доме

Количество лифтов

2 пассажирских, 1 грузовой

Тип дома

Монолитно-кирпичный

Пандус

Есть

Понравилась квартира — узнайте о ней больше

Застройщик ответит на все вопросы

Отделка в ЖК

  • Предчистовая
  • Без отделки
Похоже на то, что вы ищете?

Акции в ЖК «Supreme (Суприм)»

Узнайте про персональные условия и дополнительные скидки при покупке квартиры у застройщика

Материнский капитал

Ипотечный калькулятор
  • Базовая
  • Семейная
  • ИТ-ипотека
  • 20%
  • 30%
  • 40%
  • 50%
лет
  • 10 лет
  • 20 лет
  • 30 лет
Загружаем предложения от застройщика и банков

Расположение

Корпус проверен наш.дом.рф
Обновлено 5 марта 2025
  • Нет в реестре проблемных объектов
  • Застройщик не банкрот
  • Есть эскроу счёт
  • Неактуальные фото стройки

Ещё квартиры в жилом комплексе

381 квартира в продаже · Сдача в 3 кв. 2026
Автор объявления

Застройщик «ДВ Капитал»

2014

год
основания
Общество с ограниченной ответственностью «ДВ Капитал»
11 251 800 ₽
Цена за метр
228 000 ₽/м²
Условия сделки
свободная продажа