Мы используем куки-файлы. Соглашение об использовании
Только на Циан
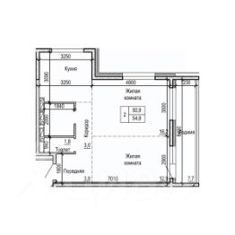
Общая площадь54,8 м²
Этаж4 из 25
Год сдачи2026
ДомНе сдан
ОтделкаБез отделки
Жилой комплекс "на Черняховского" - идеальное место для комфортной жизни в самом сердце 71 микрорайона. Комплекс состоит из двух отдельно стоящих домов с паркингом, кладовыми и коммерческими помещениями, а также детскими и спортивными площадками для детей разных возрастов.

О квартире

Тип жилья

Новостройка

Общая площадь

54,8 м²

Высота потолков

2,7 м

Отделка

Без отделки

О доме

Количество лифтов

2 пассажирских, 1 грузовой

Тип дома

Монолитный

Пандус

Есть

Понравилась квартира — узнайте о ней больше

Застройщик ответит на все вопросы

Отделка в ЖК

  • Чистовая с мебелью
  • Чистовая
  • Черновая
  • Без отделки
Похоже на то, что вы ищете?

Акции в ЖК «На Черняховского»

Узнайте про персональные условия и дополнительные скидки при покупке квартиры у застройщика

Материнский капитал

Ипотечный калькулятор
  • Базовая
  • Семейная
  • ИТ-ипотека
  • 20%
  • 30%
  • 40%
  • 50%
лет
  • 10 лет
  • 20 лет
  • 30 лет
Загружаем предложения от застройщика и банков

Расположение

Корпус проверен наш.дом.рф
Обновлено 28 апреля 2026
  • Нет в реестре проблемных объектов
  • Застройщик не банкрот
  • Есть эскроу счёт
  • Актуальные фото стройки

Ещё квартиры в жилом комплексе

292 квартиры в продаже · Сдача в 2 кв. 2026
Автор объявления

Застройщик «ОСК Регион»

Общество с ограниченной ответственностью «Регион» начало свою историю в 2005 году. Изначально компания занималась подрядными работами, строительством. По мере развития ООО «Регион» расширила сферу своей деятельности, было создано Объединение строительных ...
8 778 412 ₽
Цена за метр
160 190 ₽/м²
Условия сделки
свободная продажа