Мы используем куки-файлы. Соглашение об использовании
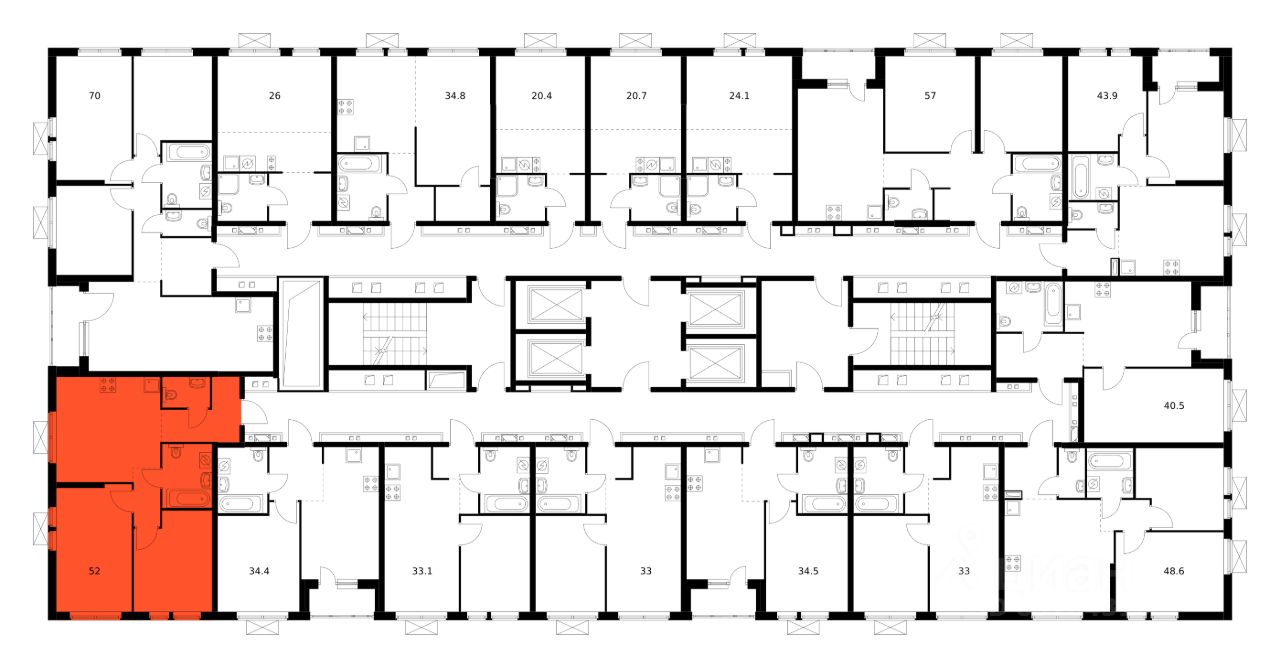
Общая площадь52 м²
Жилая площадь23,5 м²
Площадь кухни15 м²
Этаж28 из 28
Год сдачи2026
ДомНе сдан
ОтделкаПредчистовая
Продаётся 2-комн. квартира площадью 52 кв.м на 28 этаже 28 этажного дома (Корпус 2, Секция 2) проекта ПИК Борисенко 48. Светлый просторный подъезд на уровне земли, функциональная планировка, большие окна, предчистовая отделка. "Борисенко 48" - небольшой квартал в Первомайском районе, в 15 минутах пути на автомобиле от центра Владивостока. С верхних этажей откроется живописный вид на город и сопки. В проекте всего четыре дома и подземный паркинг, в который можно будет спуститься на лифте. Высота домов от 17 до 30 этажей - благодаря переменной этажности солнце будет лучше освещать двор и квартиры. На первых этажах откроются пекарни, кафе, магазины и другие сервисы - это удобно, когда внезапно закончится хлеб или захочется побаловать себя горячим кофе. Из каждого дома будет выход в уютный двор-парк - это закрытая территория для отдыха, где растут цветы и деревья, оборудованы детские и спортивные площадки. Рядом с "Борисенко 48" появится также детский сад для 150 малышей. В пешей доступности есть всё необходимое для комфортной жизни: школы, детские сады, поликлиника и магазины. До крупных торговых центров "Калина Молл" и "Луговая", а также супермаркета "Реми" - всего 5 минут на машине. А до озера на Сафонова, которое отлично подходит для прогулок и отдыха, можно дойти пешком за 9 минут. Живописная Леопардовая набережная - в 10 минутах на автомобиле. Из квартала можно будет выехать как на улицу Борисенко, так и на улицу Сафонова. Артикул 918610 (Застройщик ООО "СЗ "Юстина")

О квартире

Тип жилья

Новостройка

Общая площадь

52 м²

Жилая площадь

23,5 м²

Площадь кухни

15 м²

Высота потолков

2,66 м

Санузел

2 совмещенных

Вид из окон

На улицу и двор

Отделка

Предчистовая

О доме

Количество лифтов

4 пассажирских

Тип дома

Монолитный

Парковка

Подземная

Понравилась квартира — узнайте о ней больше

Застройщик ответит на все вопросы

Отделка квартиры

Предчистовая — остаётся установить сантехнику, розетки, двери и навести красоту: поклеить обои и уложить на пол покрытие

Варианты отделки в ЖК

  • Чистовая
  • Предчистовая

О ЖК «Борисенко 48»

  • Сдача комплекса
    Сдача в 4 кв. 2026
  • Застройщик
    ПИК
  • Класс
    Комфорт
  • Тип дома
    Монолитный
  • Парковка
    Подземная, отдельная многоуровневая
  • Отделка
    Предчистовая, чистовая
  • Тип комплекса
    Жилой комплекс
Похоже на то, что вы ищете?

Особенности жилого комплекса

  • Отделка

  • Парковка

  • Внутренний двор

  • Архитектура

  • Входная группа

  • Лифт

Подробнее о жилом комплексе

Акции в ЖК «Борисенко 48»

Узнайте про персональные условия и дополнительные скидки при покупке квартиры у застройщика
logo

-5% с промокодом ВЕСНАКРАСНА

Рассрочка на 6 месяцев

Рассрочка на 3 месяца

Ипотечный калькулятор
  • Базовая
  • Семейная
  • ИТ-ипотека
  • 20%
  • 30%
  • 40%
  • 50%
лет
  • 10 лет
  • 20 лет
  • 30 лет
Загружаем предложения от застройщика и банков

Расположение

Корпус проверен наш.дом.рф
Обновлено 17 марта 2026
  • Нет в реестре проблемных объектов
  • Застройщик не банкрот
  • Есть эскроу счёт
  • Неактуальные фото стройки

Ещё квартиры в жилом комплексе

130 квартир в продаже · Сдача в 4 кв. 2026
Автор объявления

Застройщик «ПИК»

Надежный застройщик
ПИК, основанная в 1994 году, является одним из ведущих российских публичных девелоперов жилой недвижимости. Компания реализует масштабные проекты в Москве, Московской области, Санкт-Петербурге и других регионах России. Приоритетное направление деятельност...
9 289 956 ₽
Цена за метр
178 653 ₽/м²
Условия сделки
долевое участие (214-ФЗ)
В топ-3 рейтинга ЦианВ общем рейтинге застройщиков
31 000 мест в детсадах и школахОбеспечили с 1994 года
27 000 000 м²Ввели в эксплуатацию с 1993 года