Мы используем куки-файлы. Соглашение об использовании

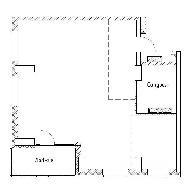
Продается 3-комн. квартира, 70,3 м²

Общая площадь70,3 м²
Этаж15 из 17
Год сдачи2024
ДомСдан
Продаётся 3-комнатная квартира в сданном доме (Сочинская, 17 (Дом 1)), срок сдачи: IV-кв. 2024, общей площадью 70.3 кв.м., на 15 этаже. Новый жилой комплекс "Миля" от застройщика "ГК Мастерстрой ДВ" расположен по адресу город Владивосток, улица Басаргина.

О квартире

Тип жилья

Новостройка

Общая площадь

70,3 м²

Высота потолков

2,6 м

О доме

Количество лифтов

1 пассажирский, 5 грузовых

Тип дома

Монолитно-кирпичный

Пандус

Есть

Похоже на то, что вы ищете?
Ипотечный калькулятор
  • Базовая
  • Семейная
  • ИТ-ипотека
  • 20%
  • 30%
  • 40%
  • 50%
лет
  • 10 лет
  • 20 лет
  • 30 лет
Загружаем предложения от застройщика и банков

Расположение

Корпус проверен наш.дом.рф
Обновлено 5 февраля 2026
  • Нет в реестре проблемных объектов
  • Застройщик не банкрот

Ещё квартиры в жилом комплексе

43 квартиры в продаже · Сдан
Консультант
Циан
  • 5 лет 10 месяцев на Циане
  • 38364 объявления
  • 13 075 800 ₽
    Цена за метр
    186 000 ₽/м²
    Условия сделки
    свободная продажа
    Консультант
    Циан