


197 825 ₽/м²
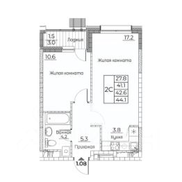
DNV-05-01-04-005-006 Современная 2-комнатная квартира евроформата с большой просторной спальней и предчистовой отделкой в жилом комплексе "ДОМ на Востоке". Общая площадь 44,8 м2. Срок сдачи 1 кв. 2027 г. Монолитный дом. "ДОМ на Востоке" жилой квартал с авторской архитектурой от известного бюро KAMEN, благоустроенной территорией и собственной развитой инфраструктурой. Это флагманский проект от государственного застройщика ДОМ.РФ Девелопмент, расположенного в сердце живописной бухты Патрокл. Проект находится в перспективном, быстроразвивающемся районе города со всей инфраструктурой на берегу залива. Всего 8 минут пешком и вы на Леопардовой набережной совершаете променад или любуетесь завораживающими закатами и рассветами. До центра города и крупных торговых центров легко добраться за 20 минут на автомобиле. Преимущества лота - Высокий потолок 2,9 м в чистоте - Гардеробная комната - Большой санузел 4,4 м2 - Большая светлая спальня 17,6 м2 - 2 корзины для кондиционера Отделка: В квартире будет выполнена предчистовая отделка. - Возведены перегородки из керамзита-цементных блоков - Оштукатурены стены - Выполнена стяжка пола - Произведена разводка трубопроводов, электричества, вентиляции и кондиционирования. Разводка отопления осуществляется внутри стяжки (горизонтальная), выводы под радиаторы выведены из стены. - Установлены радиаторы с терморегулятором - Выполнена шумоизоляция по полу - Установлены двухкамерные стеклопакеты и металлическая входная дверь - Заведен интернет кабель до слаботочного щита в квартире - Проведены коммуникации под установку кондиционера К моменту выдачи ключей все шумные работы будут завершены. Вам останется самая приятная часть ремонта выбор покрытия стен и пола, сантехники, мебели и аксессуаров. Инфраструктура На первых этажах домов будет все необходимое для жизни: магазины, кафе, аптеки, салоны красоты и многое другое. А для семей с детьми предусмотрены детские сады, безопасные игровые площадки и игровые комнаты. Паркинг: подземный отапливаемый с видеонаблюдением Для удобства жителей комплекса предусмотрен теплый паркинг в доме. Теперь не придется искать место для парковки, а также чистить автомобиль от снега или прогревать его в холодное время года. В паркинге также расположены кладовые помещения для хранения сезонных вещей и спортивного инвентаря. Условия покупки Продажа от надёжного государственного застройщика ДОМ.РФ Девелопмент с использованием эскроу-счетов. 100% оплата или ипотека. Сейчас действуют особые предложения по льготной ипотеке на период строительства. Купить 2-комнатную квартиру на 4 этаже в Владивостоке.


































































































































