


204 856 ₽/м²
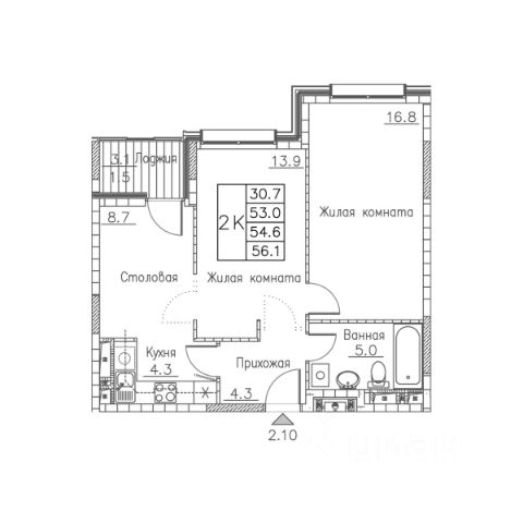
DNV-07-01-06-006-038 Современная 2-комнатная квартира классического формата с большой светлой гостиной в жилом комплексе "ДОМ на Востоке". Срок сдачи 3 кв. 2027 г. Монолитный дом. "ДОМ на Востоке" жилой квартал с авторской архитектурой от известного бюро KAMEN, благоустроенной территорией и собственной развитой инфраструктурой. Это флагманский проект от государственного застройщика ДОМ.РФ Девелопмент, расположенного в сердце живописной бухты Патрокл. Проект находится в перспективном, быстроразвивающемся районе города со всей инфраструктурой на берегу залива. Всего 8 минут пешком и вы на Леопардовой набережной совершаете променад или любуетесь завораживающими закатами и рассветами. До центра города и крупных торговых центров легко добраться за 20 минут на автомобиле. Преимущества лота - Высокий потолок 2,9 м - Большая кухня - 2 санузла панорамные виды - Повышенная инсоляция Отделка: Квартира сдается в черновой отделке. Инфраструктура На первых этажах домов будет все необходимое для жизни: магазины, кафе, аптеки, салоны красоты и многое другое. А для семей с детьми предусмотрены детские сады, безопасные игровые площадки и игровые комнаты. Паркинг: подземный отапливаемый с видеонаблюдением Для удобства жителей комплекса предусмотрен теплый паркинг в доме. Теперь не придется искать место для парковки, а также чистить автомобиль от снега или прогревать его в холодное время года. В паркинге также расположены кладовые помещения для хранения сезонных вещей и спортивного инвентаря. Условия покупки Продажа от надёжного государственного застройщика ДОМ.РФ Девелопмент с использованием эскроу-счетов. 100% оплата или ипотека. Сейчас действуют особые предложения по льготной ипотеке на период строительства. Купить 2-комнатную квартиру от застройщика в Владивостоке.






























































































































































