170 000 ₽/м²
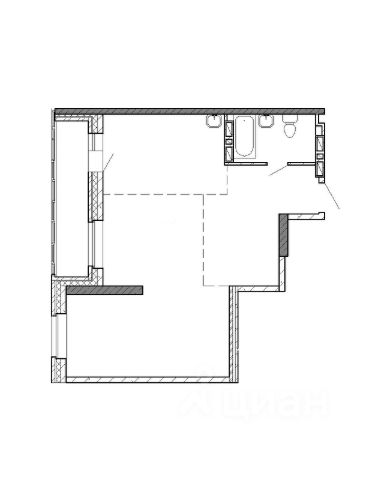
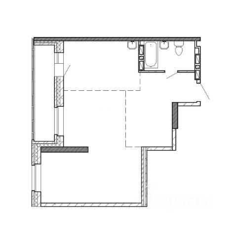
Продаётся 2-комнатная квартира в сданном доме (Дом 4), срок сдачи: IV-кв. 2023, общей площадью 55.82 кв.м., на 12 этаже. Жилой комплекс "Лидер" представляет собой комплексную многоэтажную застройку. Застройщиком спроектированы квартиры с различными планировками: от одно до четырехкомнатных. Благоустройство прилегающей территории включает в себя строительство детской площадки, а также зон отдыха. Предусмотрены открытые гостевые парковки. В шаговой доступности находятся детские сады, школы, медицинские учреждения, аптеки, магазины.



























