


187 702 ₽/м²
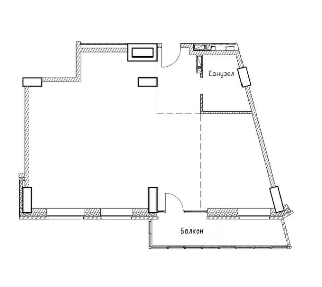
DNV-05-03-10-006-188 Просторная 3-комнатная квартира евроформата с повышенной инсоляцией и предчистовой отделкой в жилом комплексе "ДОМ на Востоке". Общая площадь 75,7 м2. Срок сдачи 1 кв. 2027 г. Монолитный дом. "ДОМ на Востоке" жилой квартал с авторской архитектурой от известного бюро KAMEN, благоустроенной территорией и собственной развитой инфраструктурой. Это флагманский проект от государственного застройщика ДОМ.РФ Девелопмент, расположенного в сердце живописной бухты Патрокл. Проект находится в перспективном, быстроразвивающемся районе города со всей инфраструктурой на берегу залива. Всего 8 минут пешком и вы на Леопардовой набережной совершаете променад или любуетесь завораживающими закатами и рассветами. До центра города и крупных торговых центров легко добраться за 20 минут на автомобиле. Преимущества квартиры - Современная планировка евроформата - Высокий потолок 2,9 м в чистоте - 2 санузла - Повышенная инсоляция 2 окна в спальне, 2 окна в кухне-гостиной - Гардеробная комната - Две корзины для кондиционеров Отделка: В квартире будет выполнена предчистовая отделка. - Возведены перегородки из керамзитобетонных блоков - Произведена разводка электричества - Трубы отопления проведены внутри стяжки пола, выводы под радиаторы расположены на стене - Оштукатурены стены - Выполнена стяжка пола - Установлены радиаторы с терморегулятором - Выполнена шумоизоляция пола - Установлены окна с двухкамерными стеклопакетами и металлическая входная дверь - В квартиру заведен интернет-кабель - Выведены коммуникации для установки кондиционера К моменту выдачи ключей все шумные работы будут завершены. Вам останется самая приятная часть ремонта выбор финишных отделочных материалов, сантехники, мебели и аксессуаров. Инфраструктура На первых этажах домов будет все необходимое для жизни: магазины, кафе, аптеки, салоны красоты и многое другое. А для семей с детьми предусмотрены детские сады, безопасные игровые площадки и игровые комнаты. Паркинг: подземный отапливаемый с видеонаблюдением Для удобства жителей комплекса предусмотрен теплый паркинг в доме. Теперь не придется искать место для парковки, а также чистить автомобиль от снега или долго прогревать его в холодное время года. В паркинге также расположены кладовые помещения для хранения сезонных вещей и спортивного инвентаря. Условия покупки Продажа от надёжного государственного застройщика ДОМ.РФ Девелопмент с использованием эскроу-счетов. 100% оплата или ипотека. Сейчас действуют особые предложения по льготной ипотеке на период строительства.















































































































































