


175 000 ₽/м²
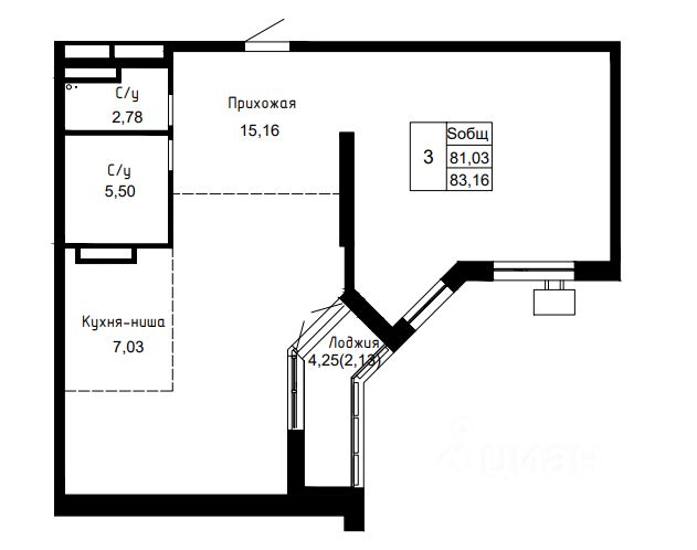
Продаётся 3-комнатная квартира в строящемся доме (Красноармейская, 4 (Корпус 1)), срок сдачи: III-кв. 2026, общей площадью 71.5 кв.м., на 16 этаже. ЖК "Аргумент" - выбор успешных и респектабельных людей, ценящих стиль, комфорт и безопасность. Жилой комплекс расположился в центре города, в районе ул. Кирова 48, отличается особой атмосферой и отличной транспортной доступностью. Архитектурная концепция, продуманная организация пространства и создают атмосферу исключительного комфорта в сердце города. Преимущества: Большие планировки Центральное отопление Дом из монолита Закрытая территория Система видеонаблюдения Двор без машин









































































