


205 811 ₽/м²
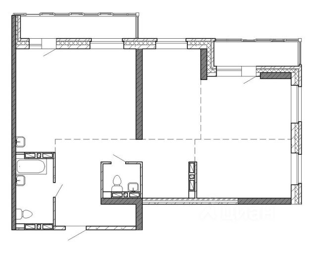
Старт продаж! Первый клубный дом на Патрокле! ID: DNV-08-02-05-004-079 Современная 4 комнатная квартира классического формата в жилом комплексе "ДОМ на Востоке". Срок сдачи IV кв. 2027. "ДОМ на Востоке" жилой квартал с авторской архитектурой от известного бюро KAMEN, благоустроенной территорией и собственной развитой инфраструктурой. Это флагманский проект от государственного застройщика ДОМ.РФ Девелопмент, расположенный в сердце живописной бухты Патрокл. Проект находится в перспективном, быстроразвивающемся районе города со всей инфраструктурой на берегу залива. Всего 8 минут пешком и вы на Леопардовой набережной совершаете променад или любуетесь завораживающими закатами и рассветами. До центра города и крупных торговых центров легко добраться за 20 минут на автомобиле. Особенности квартиры: • мастер-спальня с отдельным санузлом и просторной гардеробной; • отдельная гардеробная комната; • светлая квартира с 7 окнами; • 8 этажей в доме; • 4 квартиры на этаже; • высокие потолки 3 м. Квартира сдается без отделки: квартира с входной дверью, окнами, гидроизоляцией пола в мокрых зонах, водопроводом с канализацией, радиаторами, подведенным электричеством с установленным щитком механизации и автоматами. На первых этажах домов будет все необходимое для жизни: магазины, кафе, аптеки, салоны красоты и многое другое. А для семей с детьми предусмотрены детские сады, безопасные игровые площадки и игровые комнаты. Для удобства жителей комплекса предусмотрен подземный отапливаемый паркинг с видеонаблюдением. Теперь не придется искать место для парковки, а также чистить автомобиль от снега или прогревать его в холодное время года. В паркинге также расположены кладовые помещения для хранения сезонных вещей и спортивного инвентаря. Продажа от надёжного государственного застройщика ДОМ.РФ Девелопмент с использованием эскроу-счетов. Различные варианты финансирования покупки: льготные программы ипотеки, рассрочка, 100% оплата. Уточняйте текущие акции у менеджеров жилого комплекса!






































































































































