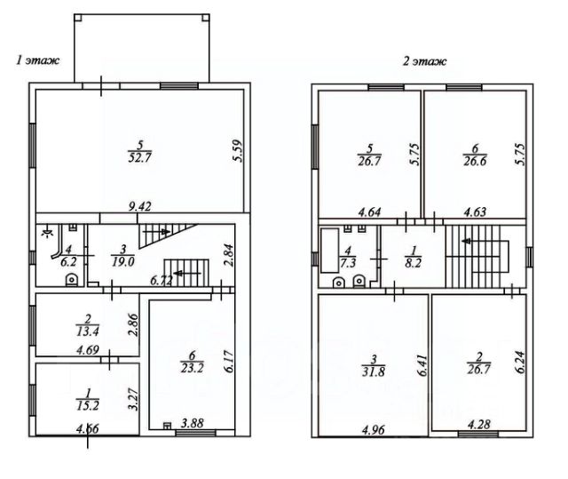
Просторный , уютный дом в стиле Усадьба с ландшафтным дизайном на участке , личным СПА и удобной локацией в городе! Дом с видом на озеро. Участок с многолетними насаждениями, плодородными и декоративными! Дом общей площадью 350 кв.м. Бассейн общей площадью 607 кв.м. На территории разнообразные локации для отдыха ( детская площадка, беседка, зона барбекю в озелененной зоне. Дом имеет три этажа с полным функционалом. Первый этаж кухня, гостинная, очень большая гардеробная, санузел. Второй этаж три спальни, большой, светлый балкон, санузел, гостинная. Третий этаж кабинет, игровая, жилая комната. Отдельный собственный бассейн на территории с двумя парными, комнатами отдыха, баром. Напротив жилого комплекса имеется земля 15 соток в собственности, также входит в стоимость всего объекта. Данный комплекс можно приобрести как для комфортного проживания так и ведения бизнеса. Более подробную информацию вы можете узнать, позвонив по указанному номеру телефона. Купить дом на участке ИЖС в Уссурийске.



















































































