


211 600 ₽/м²
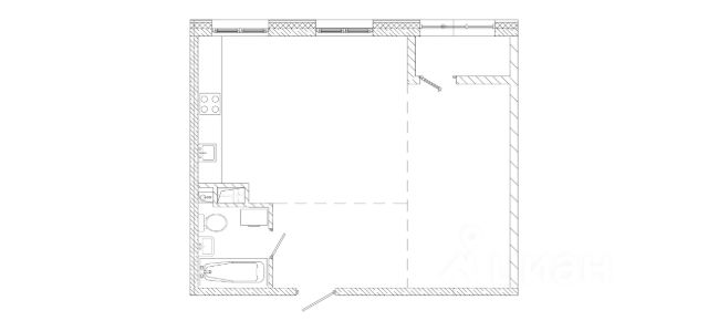
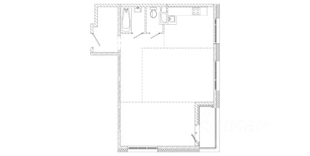
Продаётся 1-комн. квартира площадью 33,1 кв.м на 6 этаже 25 этажного дома (Корпус 4, Секция 2) проекта ПИК Снежный парк. Светлый просторный подъезд на уровне земли, функциональная планировка, большие окна, c отделкой. Жилой квартал "Снежный парк" возводится в развитом микрорайоне Владивостока - Снеговой Пади. Рядом уже есть всё для комфортной жизни: 2 школы, детская и взрослая поликлиники, торговый центр и магазины. Проект будет состоять из 7 корпусов, высота которых от 24 до 29 этажей. Благодаря низкой плотности застройки жители будут чувствовать себя комфортно. За счёт переменной этажности в квартиры будет попадать ещё больше естественного света. Из окон последних этажей будет открываться панорамный вид на Амурский залив и лес. В квартирах предусмотрены большие окна, застеклённые балконы и лоджии - будет светло и уютно даже зимой. В жилом квартале появится уникальное общественное пространство с пешеходным бульваром и зонами для отдыха. На первых этажах откроются кафе, магазины и полезные сервисы, куда можно спуститься за горячим кофе или свежеиспечённым хлебом. Из каждого дома будет выход в уютный двор-парк с современными детскими и спортивными площадками. Здесь мы посадим цветы и деревья: будет приятно отдыхать или почитать книгу. Артикул 786037 (Застройщик ООО "СЗ ФОРМУЛА-ДВ")





























































































































