


153 977 ₽/м²
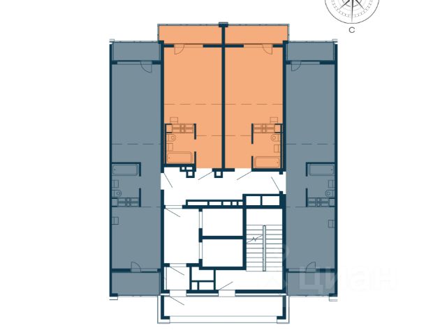
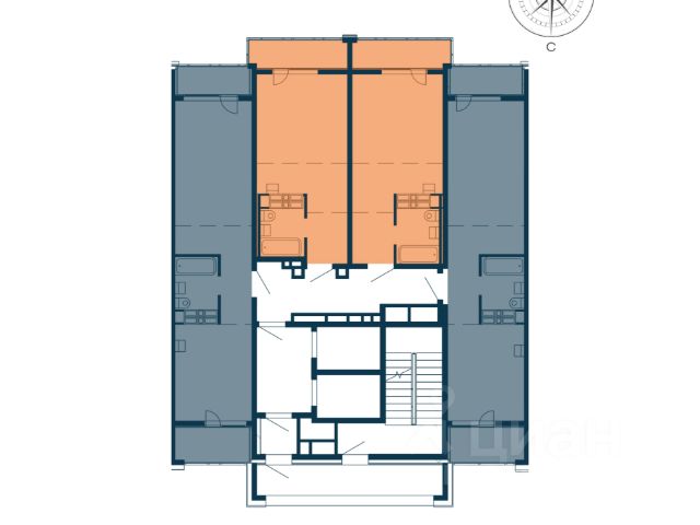
Новый объект — это 24-этажный двухподъездный жилой дом на 322 квартиры, а также первый этаж помещений коммерческого назначения с собственным входом. Жилой дом будет находится под круглосуточным видеонаблюдением и продуманной инфраструктурой: детская зона спроектирована так, чтобы полностью обеспечить игровыми элементами детей разного возраста. Для любителей спорта на территории жилого комплекса спроектирована спортивная площадка с тренажёрами. Также на территории жилого комплекса предусмотрены комфортные зоны для отдыха, выполненные в соответствии с современными трендами ландшафтного дизайна. Поставить автомобиль и пойти домой, не беспокоясь о его безопасности, в ЖК "Молодежный", мы предусмотрели одноуровневый наземный паркинг закрытого типа. На въезд в паркинге будут установлены автоматические подъемно — секционные ворота с системой дистанционного управления, а также система охраны, система автоматизации и пожаротушения. — Площадь квартир: от 34,9 до 92 м2 — Высота потолков 2,7 м — 14 нежилых помещений на первом этаже площадью от 32 м2 до 68м2 — Отопление: централизованное от городских сетей — Лифт грузопассажирский — 6 — Оконные блоки — профиль ПВХ, тройной стеклопакет Витражное остекление лоджий, что обеспечит высокий уровень естественного освещения — Наружные стены — газосиликатный блок "Силбет" , утеплитель Базалит Венти-Н 150 мм — Вентилируемый фасад из керамогранита по новой технологии без сквозных швов — Качественное наполнение установка приборов отопления, установка входных дверей, установка оконных и балконных дверных блоков из ПВХ (тройное остекление), подводка стояков канализации и холодного водоснабжения, счетчики ХВС, горячее водоснабжение от индивидуальных водонагревателей Традиционно, в ночное время, дом будет радовать жителей города красивой подсветкой фасада. Окончание строительства — второй квартал 2025 года. Продается квартира на улице Комсомольская в городе Находка.






























































