


148 906 ₽/м²
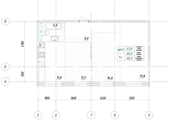
ЖК "Сияние" — это современный проект комфорт-класса, созданный для тех, кто ценит уют, практичность и удобство городской жизни. Дом расположен по адресу проспект Северный, 21, в районе Сидоренко. Рядом с озером Лебединое, что обеспечивает чистый воздух и приятные виды из окон. Здесь продумано всё — от функциональных планировок квартир до закрытой территории и благоустроенных зон отдыха. Благодаря развитой инфраструктуре и хорошей транспортной доступности, ЖК "Сияние" идеально подходит как для молодых семей, так и для тех, кто ищет квартиры под инвестиции. Основные характеристики: 18 этажей 3 подъезда 7 типов квартир площадью от 32,5 м² до 72,7 м² Современные высокоскоростные лифты Одноуровневый наземный закрытый паркинг с индивидуальными боксами Кладовые помещения площадью 38 м² Офисные помещения площадью 2065 м² Инфраструктура внутри комплекса: Благоустроенная и закрытая территория Зоны отдыха Детские площадки Спортивная площадка Подсветка двора и здания Преимущества: Просторные планировки, включая квартиры-студии и семейные варианты. Закрытый паркинг для безопасности автомобилей. Развитая городская инфраструктура. Зеленые зоны и близость к озеру. Высокий уровень комфорта и современный дизайн




































































