


205 776 ₽/м²
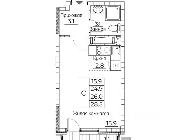
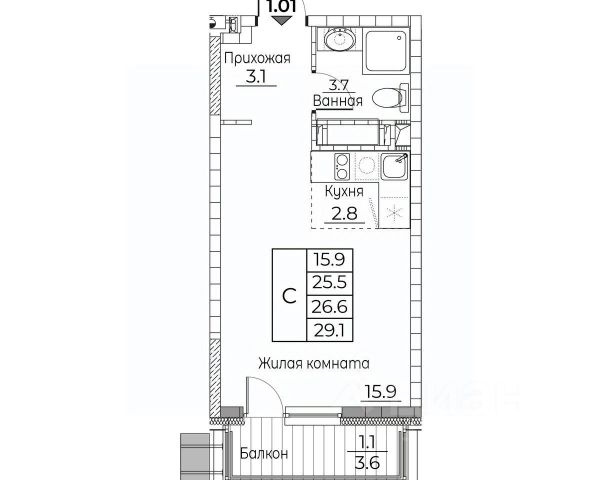
Продается квартира-студия на 8-м этаже в жилом квартале Зелёные высоты от GloraX — проекте в тихой зелёной локации. Общая площадь квартиры 27,70 кв. м, из которых 13,80 кв. м включая 13,80 кв. м жилого пространства и 3,60 кв. м кухни. Номер квартиры - 323. Преимущества квартиры: зонируемая студия; лоджия. Преимущества проекта: • Идеальное сочетание городской и загородной жизни • Сдаем в 2026 году • Уютный зелёный район с развитой инфраструктурой • Великолепные виды на Вечнозеленый сквер и лесопарк на 150 Га • Видеонаблюдение, IP-домофон, Wi-Fi на территории, • Дизайнерские входные группы • Безбарьерная среда, колясочные, туалеты на 1 этаже, лапомойки • Эксклюзивное благоустройство территории • Подземный паркинг на 235 машино-мест с лифтом на жилые этажи • Индивидуальные кладовые от 3 до 7 кв. м • Черновая отделка для реализации любых дизайнерских идей Зелёные высоты — современный жилой проект, сочетающий преимущества городской и пригородной жизни. Комплекс тщательно продуман для максимального удобства и обеспечения безопасности жителей. Квартал расположен в зеленом, живописном и активно развивающемся районе Зеленый Угол, вдали от серой массовой застройки. Жители проекта Зелёные высоты смогут наслаждаться прогулками в Вечнозелёном сквере или лесопарке. В непосредственной близости находятся остановки общественного транспорта и автомобильный подъезд со стороны Нейбута. Скоро также появится выездом на трассу Де-Фриз-Седанка, что обеспечит быстрый доступ в любую часть города и пригород. Проект включает 2 корпуса, каждый из которых спроектирован с акцентом на комфорт, безопасность и современный образ жизни. В комплексе предусмотрен подземный паркинг на 235 машиномест с доступом прямо с жилых этажей. Паркинг оборудован современными системами видеонаблюдения, контроля въезда-выезда и пожаротушения. Цокольный этаж здания отведен под индивидуальные кладовые площадью от 3 до 7 квадратных метров, которые можно использовать для хранения сезонных вещей. Доступ к кладовым - на лифте с жилых этажей. Территория жилого квартала благоустроена и включает игровые зоны и спортивные площадки для детей различных возрастных групп, уютные зоны отдыха со скамейками и универсальную воркаут-площадку для активного досуга. В шаговой доступности располагаются все необходимые объекты социальной инфраструктуры. Узнайте больше в отделе продаж — выберите свою квартиру в проекте Зелёные высоты от GloraX уже сегодня!
















































































