


206 298 ₽/м²
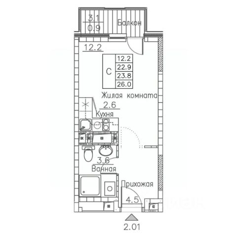
Продается квартира-студия на 10-м этаже в проекте Огни Патрокла от GloraX. Огни Патрокла - уникальный видовой проект с выделяющейся архитектурой в развитом районе Владивостока. Общая площадь лота составляет 31,12 кв. м, из которых 13,46 кв. м отведено под жилую и 9,00 кв. м под кухонную зону. Номер квартиры - 333. Преимущества квартиры: студия. Преимущества проекта: • Квартиры с панорамными видами на бухту Патрокл, маяк Басаргина и остров Русский • Планировочные решения под любой жизненный сценарий от 23 до 67 м² • Гардеробные комнаты, увеличенные панорамные окна, просторные кухни-гостиные • Эксклюзивное благоустройство: продуманное зонирование, игровые и спортивные площадки, площадка для стритбола, амфитеатр • Премиальный дизайн входных групп с лаунж-зоной • Безбарьерная среда, закрытая территория, видеонаблюдение • Лапомойки, колясочные и туалеты на первом этаже • Двухуровневый подземный паркинг на 350 машино-мест с лифтом на жилые этажи • Келлеры на цокольном этаже для хранения сезонных вещей с доступом на лифте • Современный ландшафтный дизайн комплекса от DEREVOPARK Проект Огни Патрокла заповедник в черте мегаполиса. Комплекс тщательно продуман для максимального удобства и обеспечения безопасности его жителей. Квартал расположен в одном из самых современных развивающихся районов города: совсем рядом раскинулась живописная бухта Патрокл, где можно прогуляться по облагороженной пешеходной набережной, заглянуть на пляж или в школу серфинга. Комплекс имеет прекрасную транспортную доступность: рядом проходит объездная трасса СеданкаПатрокл, а до центра можно доехать всего за 15 минут. Проект включает 3 монолитных корпуса, каждый из которых спроектирован с акцентом на комфорт, безопасность и современный образ жизни рядом с уникальной природой. Общий двор создает приватную территорию для жителей комплекса. В комплексе предусмотрен двухуровневый подземный паркинг на 350 машино-мест с доступом прямо с жилых этажей. Паркинг оборудован современными системами видеонаблюдения, контроля въезда-выезда и пожаротушения. На цокольном этаже размещаются келлеры для хранения сезонных и габаритных вещей. Доступ к кладовым на лифте с жилых этажей. Современный ландшафтный дизайн жилого комплекса Огни Патрокла создан ведущей российской студией DEREVOPARK. Во дворе для детей всех возрастов предусмотрены различные игровые площадки с лазалками, батутами, качелями и песочницей. В центре расположен специальный "зеленый остров", где взрослые могут отдохнуть на качелях и гамаках в тени больших деревьев. Для любителей спорта предусмотрены две специальные спортивные площадки для настольного тенниса и стритбола — для зрителей тоже найдется место! А еще на территории комплекса будет дорожка для роллеров и любителей покататься на велосипеде, самокате или скейте. В шаговой доступности располагаются все необходимые объекты социальной и коммерческой инфраструктуры. Действуют скидки при определенных усло













































































































