Первичная продажа



Доступно всем на 2 года от 10%
ещё 10 акций
С отделкой
сдача ГК: 4 кв. 2026 года
5 411 655 ₽
224 550 ₽/м²
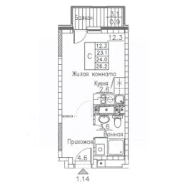
Продаётся квартира-студия площадью 24,1 кв.м на 28 этаже 28 этажного дома (Корпус 2, Секция 2) проекта ПИК Борисенко 48. Светлый просторный подъезд на уровне земли, функциональная планировка, большие окна, с предчистовой отделкой.
"Борисенко 48" - небольшой квартал в Первомайском районе, в 15 минутах пути на автомобиле от центра Владивостока. С верхних этажей откроется живописный вид на город и сопки.
В проекте всего четыре дома и подземный паркинг, в который можно будет спуститься на лифте. Высота домов от 17 до 30 этажей - благодаря переменной этажности солнце будет лучше освещать двор и квартиры.
На первых этажах откроются пекарни, кафе, магазины и другие сервисы - это удобно, когда внезапно закончится хлеб или захочется побаловать себя горячим кофе. Из каждого дома будет выход в уютный двор-парк - это закрытая территория для отдыха, где растут цветы и деревья, оборудованы детские и спортивные площадки. Рядом с "Борисенко 48" появится также детский сад для 150 малышей.
В пешей доступности есть всё необходимое для комфортной жизни: школы, детские сады, поликлиника и магазины. До крупных торговых центров "Калина Молл" и "Луговая", а также супермаркета "Реми" - всего 5 минут на машине. А до озера на Сафонова, которое отлично подходит для прогулок и отдыха, можно дойти пешком за 9 минут. Живописная Леопардовая набережная - в 10 минутах на автомобиле. Из квартала можно будет выехать как на улицу Борисенко, так и на улицу Сафонова. Артикуль 918619 (ООО "СЗ "Юстина")


























































































































