Первичная продажа



6 акций
С отделкой
6 707 632 ₽
264 080 ₽/м²
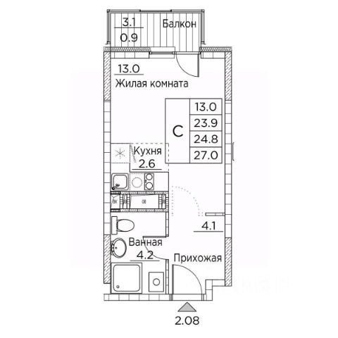
Продается студия в ЖК "Гринхилс". Отделка - whitebox, санузел - под ключ.
Общая площадь квартиры — 25.4 кв. м, этаж 19 из 19.
Тип дома — монолитный.
Цена указана при 100% оплате.
ЖК "Гринхилс" — жилой квартал комфорт-класса в выгодной локации микрорайона Зеленый угол: развивающегося современного жилого кластера во Владивостоке, внутри которого реализуются проекты нового поколения, преобразуя город.
Полный набор необходимой инфраструктуры, транспортная доступность, исторические места города в шаговой доступности, а также окружение леса — все это и есть современный Зеленый угол.
ТРАНСПОРНАЯ ДОСТУПНОСТЬ
- 15 минут до центра;
- 17 минут до ж/д вокзала;
- 10 мин до пляжа Патрокл*;
- 30 минут до автовокзала;
- 50 минут до аэропорта.
* Планируется ввод дороги, соединяющей район с объездной Седанка-ДеФриз-Патрокл.
ПЛАНОВЫЙ ВВОД В ЭКСПЛУАТАЦИЮ
- 1 корпуса — 2026 год;
- 2 и 3 корпусов — 2027 год.
АРХИТЕКРУРНЫЕ И ИНЖЕНЕРНЫЕ РЕШЕНИЯ, ПОВЫШАЮЩИЕ КАЧЕСТВО ЖИЗНИ
- Приватный безопасный каскадный двор-парк площадью более 4000м2, спроектирован как отдельный архитектурный объект с зонами, включающими в себя целый комплекс оборудования для детей и взрослых, озеленением и современным освещением, благодаря которому будет приятно гулять и отдыхать во дворе в вечернее и ночное время;
- Доступ на территорию всего ЖК только для вас и ваших гостей;
- Видеонаблюдение по периметру всего ЖК, безбарьерный доступ в дом с обеих сторон и современная домофония;
- Дизайнерская отделка мест общего пользования, чтобы было приятно каждый раз, когда приходишь к себе домой;
- Предусмотрено место для консьержа, а также туалеты на первых этажах для вашего комфорта;
- Колясочные и три современных лифта c прямым доступом к индивидуальным кладовым и паркингу;
- Трехэтажный приватный паркинг в 3-м корпусе: широкие проезды, индивидуальные машиноместа, безопасное и комфортное хранение вашего автопарка.
МНОЖЕСТВО ПЛАНИРОВОЧНЫХ РЕШЕНИЙ И ВАРИАНТОВ ОТДЕЛКИ
- Студии, 1к, 2к, 3к, 4к и квартиры евро-формата спроектированных по стандарту "Эргом2етрика", учитывающие различные сценарии жизни.
Для вашего удобства для каждого варианта планировки вы можете выбрать подходящую готовности квартиры:
- Без отделки;
- Без отделки с выполненной стяжкой пола;
- Whitebox — квартира, готовая к декорированию: стены подготовлены дя отделки, проведена электрика с учетом рекомендаций по расстановке мебели и бытовой техники, выровнен пол, в каждой квартире установлена взломостойкая входная дверь;
- Whitebox plus — квартира, готовая к декорированию, в которой выполнена полностью отделка санузла;
- Квартира с полностью готовой современной отделкой в светлых тонах.
Во всех квартирах лоджии имеют панорамное остекление.
Для вашего удобства в 1м корпусе открыт демонстрационный этаж, где вы сможете вживую увидеть все варианты отделок квартир. Записывайтесь на показ по контактам в этом объявлении.










































































































