


223 470 ₽/м²
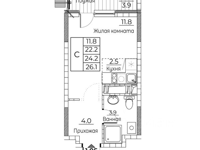
Продаётся квартира-студия площадью 25,8 кв.м на 10 этаже 28 этажного дома (Корпус 2, Секция 2) проекта ПИК Борисенко 48. Светлый просторный подъезд на уровне земли, функциональная планировка, большие окна, предчистовая отделка. "Борисенко 48" - небольшой квартал в Первомайском районе, в 15 минутах пути на автомобиле от центра Владивостока. С верхних этажей откроется живописный вид на город и сопки. В проекте всего четыре дома и подземный паркинг, в который можно будет спуститься на лифте. Высота домов от 17 до 30 этажей - благодаря переменной этажности солнце будет лучше освещать двор и квартиры. На первых этажах откроются пекарни, кафе, магазины и другие сервисы - это удобно, когда внезапно закончится хлеб или захочется побаловать себя горячим кофе. Из каждого дома будет выход в уютный двор-парк - это закрытая территория для отдыха, где растут цветы и деревья, оборудованы детские и спортивные площадки. Рядом с "Борисенко 48" появится также детский сад для 150 малышей. В пешей доступности есть всё необходимое для комфортной жизни: школы, детские сады, поликлиника и магазины. До крупных торговых центров "Калина Молл" и "Луговая", а также супермаркета "Реми" - всего 5 минут на машине. А до озера на Сафонова, которое отлично подходит для прогулок и отдыха, можно дойти пешком за 9 минут. Живописная Леопардовая набережная - в 10 минутах на автомобиле. Из квартала можно будет выехать как на улицу Борисенко, так и на улицу Сафонова. Артикул 918493 (Застройщик ООО "СЗ "Юстина") Продается квартира-студия от застройщика в Приморском крае.



































































































































































